Двухэтажный дом в современном минималистическом стиле площадью 446м²
Медная Подкова - 446м²
2138174936712112212
20 070 000
р.
р.
Получить смету по этому проекту
Проект двухэтажного дома в современном минималистическом стиле общей площадью 446м2 в коттеджном посёлке «Медная Подкова» с лаконичным фасадом и панорамными окнами
Получите смету по данному проекту
Оставьте свой номер и мы отправим Вам смету стоимости строительства
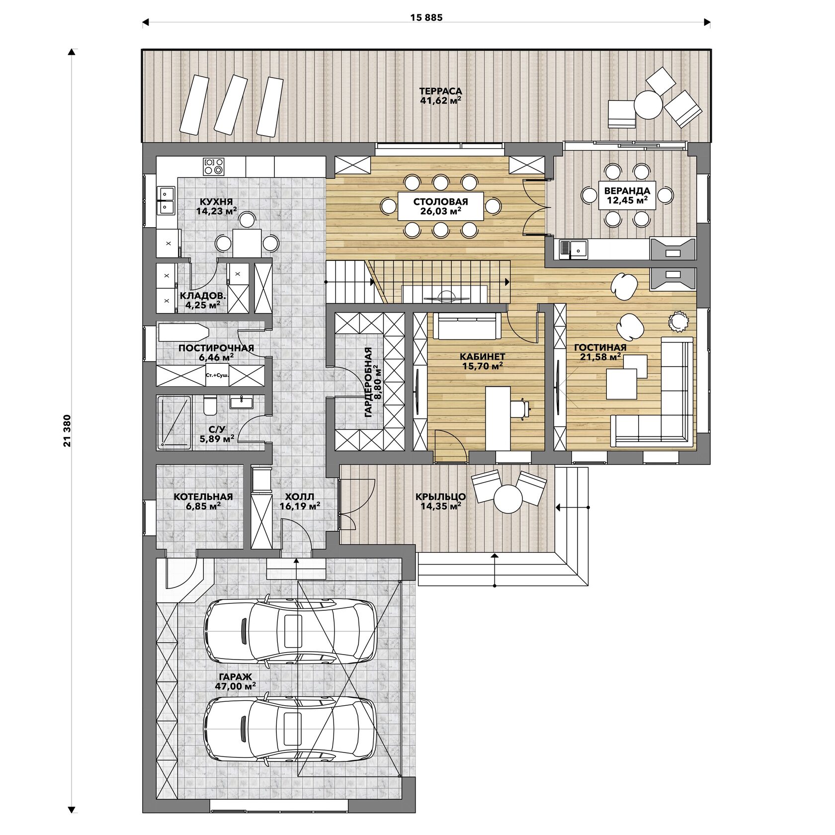
Архитектурно-планировочное решение: - На первом этаже располагаются терраса, столовая, веранда, кухня, постирочная, кабинет, гостиная, холл, котельная, крыльцо, санузел, гардеробная - На втором этаже располагаются второй свет, спальня, мастер спальня, два балкона, гардероб, сауна, санузлы и терраса
Конструктивные решения - Конструктивная система здания: бескаркасная - Несущие стены - газобетонные блоки 400мм - Ограждающие конструкции здания жилого дома запроектированы в соответствии с требованиями СП 50.13330.2012 Тепловая защита зданий - Фундамент - монолитная плита - Наружные стены - газобетонный блок Bonolit D 500 - 400мм + декоративная фасадная штукатурка - Внутренние стены - железобетонные монолитные пилоны с заполнением газоблоком Bonolit 200мм - Перегородки - Газобетонный блок Bonolit - 100/150мм - Вентканалы - Газобетонный блок Bonolit - 100мм - Перекрытие - монолитное 200мм - Крыша - плоская, неэксплуатируемая ТН Кровля Проф КМС - Водосток - организованный, наружный - Окна - из ПВХ/аллюминиевые профили с двойными стеклопакетами - Двери - межкомнатные деревянные, входная - металлическая, H=2300мм, H 1 этажа = 2600мм, H 2 этажа - 2400мм - Полы - кварцвинил в комнатах, в санузлах и тех. помещениях - керамическая плитка
Вы можете внести изменения в данный проект и адаптировать его по своим предпочтениям - изменить планировку, фасад, внутреннюю отделку. Внесение изменений производится при встрече с опытным архитектором, который учтет все ваши пожелания относительно данного проекта и поможет советом.
White Stone Group ставит пожелания клиента на первое место. При индивидуальном проектировании учитываются особенности участка, состав вашей семьи и предпочтения в архитектуре