Двухэтажный дом в стиле Райта площадью 171м²
Барвиха Хиллс - 171м²
215467
7 695 000
р.
р.
Проект двухэтажного дома в стиле Райта общей площадью 171м2 в коттеджном посёлке «Барвиха Хиллс» с уютной и просторной гостиной и большой террасой с площадью 91,9м2 для комфортной загородной жизни Вашей семьи
Архитектурно-планировочное решение:
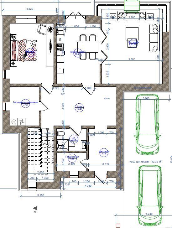
- На первом этаже располагаются гардеробная, санузел холл, спальня, кухня столовая и гостиная
- На втором этаже располагаются три спальни, терраса, балкон, два санузла и холл


Конструктивные решения
- Конструктивная система здания: бескаркасная
- Несущие стены - газобетонные блоки 400мм
- Ограждающие конструкции здания жилого дома запроектированы в соответствии с требованиями СП 50.13330.2012 Тепловая защита зданий
- Фундамент - монолитная плита
- Наружные стены - газобетонный блок Bonolit D 500 - 400мм + декоративная фасадная штукатурка
- Внутренние стены - железобетонные монолитные пилоны с заполнением газоблоком Bonolit 200мм
- Перегородки - Газобетонный блок Bonolit - 100/150мм
- Вентканалы - Газобетонный блок Bonolit - 100мм
- Перекрытие - монолитное 200мм
- Крыша - плоская, неэксплуатируемая ТН Кровля Проф КМС
- Водосток - организованный, наружный
- Окна - из ПВХ/аллюминиевые профили с двойными стеклопакетами
- Двери - межкомнатные деревянные, входная - металлическая, H=2300мм, H 1 этажа = 2600мм, H 2 этажа - 2400мм
- Полы - кварцвинил в комнатах, в санузлах и тех. помещениях - керамическая плитка
Вы можете внести изменения в данный проект и адаптировать его по своим предпочтениям - изменить планировку, фасад, внутреннюю отделку. Внесение изменений производится при встрече с опытным архитектором, который учтет все ваши пожелания относительно данного проекта и поможет советом.
План 1 этажа
План 2 этажа
Разработаем проект индивидуально под вас
White Stone Group ставит пожелания клиента на первое место. При индивидуальном проектировании учитываются особенности участка, состав вашей семьи и предпочтения в архитектуре