Одноэтажный дом в современном английском стиле площадью 361м²
Тироль - 361м²
213242789
21 660 000
р.
р.
Получить смету по этому проекту
Проект одноэтажного дома в современном английском стиле общей площадью 361м2 в коттеджном посёлке «Тироль» с просторной планировкой для большой семьи и элегантными элементами фасада во внешнем дизайне
Получите смету по данному проекту
Оставьте свой номер и мы отправим Вам смету стоимости строительства
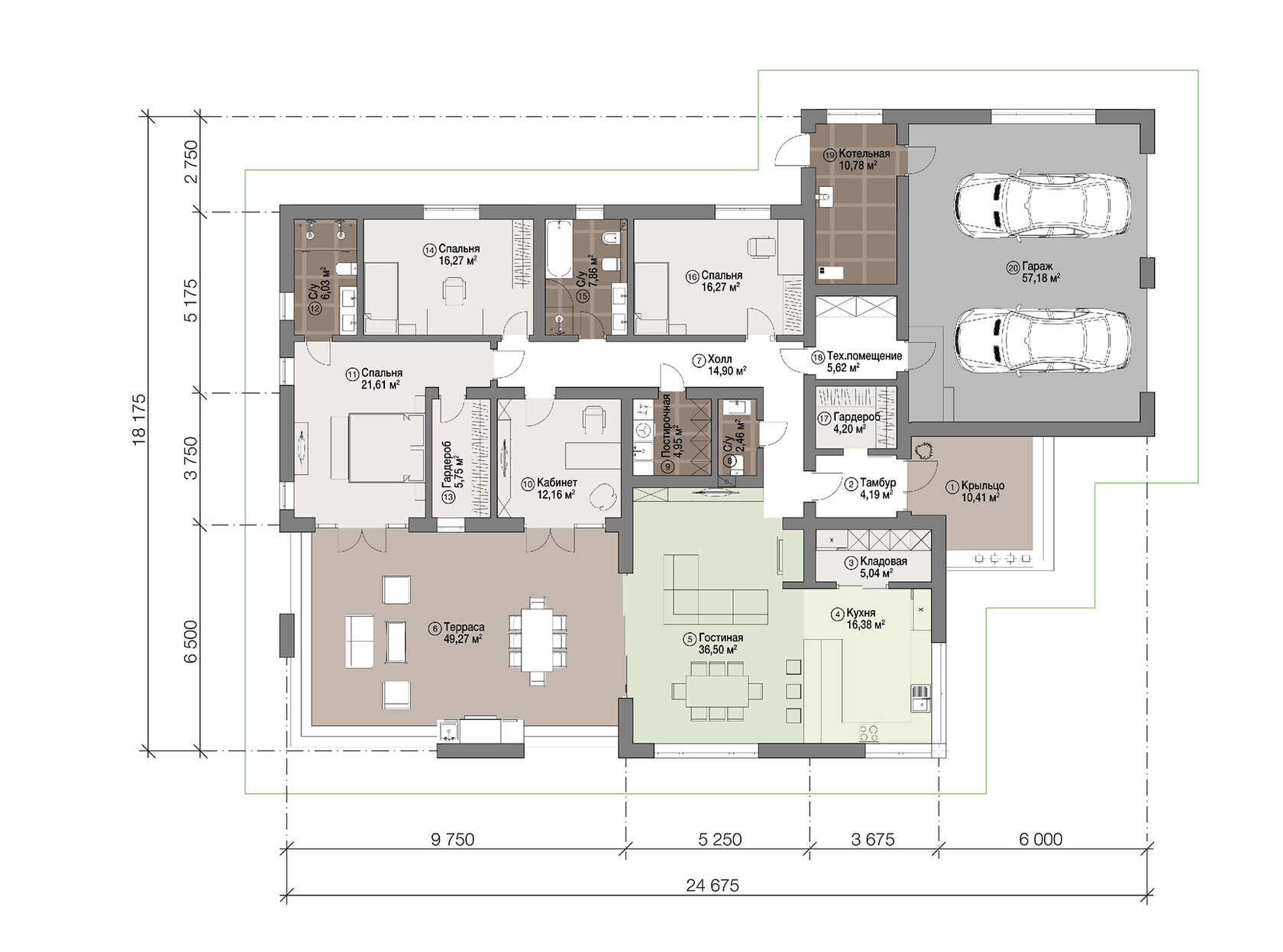
Архитектурно-планировочное решение: - На первом этаже располагаются в три санузла, три спальни, кабинет, холл, два гардероба, гостиная, кухня, терраса и гараж
Конструктивные решения - Конструктивная система здания: бескаркасная - Несущие стены - газобетонные блоки 400мм - Ограждающие конструкции здания жилого дома запроектированы в соответствии с требованиями СП 50.13330.2012 Тепловая защита зданий - Фундамент - монолитная плита - Наружные стены - газобетонный блок Bonolit D 500 - 400мм + декоративная фасадная штукатурка - Внутренние стены - железобетонные монолитные пилоны с заполнением газоблоком Bonolit 200мм - Перегородки - Газобетонный блок Bonolit - 100/150мм - Вентканалы - Газобетонный блок Bonolit - 100мм - Перекрытие - монолитное 200мм - Крыша - скатная, деревянная стропильная система с фальцевым покрытием - Водосток - организованный, наружный - Окна - из ПВХ/аллюминиевые профили с двойными стеклопакетами - Двери - межкомнатные деревянные, входная - металлическая, H=2300мм, H 1 этажа = 2600мм, H 2 этажа - 2400мм - Полы - кварцвинил в комнатах, в санузлах и тех. помещениях - керамическая плитка
Вы можете внести изменения в данный проект и адаптировать его по своим предпочтениям - изменить планировку, фасад, внутреннюю отделку. Внесение изменений производится при встрече с опытным архитектором, который учтет все ваши пожелания относительно данного проекта и поможет советом.
White Stone Group ставит пожелания клиента на первое место. При индивидуальном проектировании учитываются особенности участка, состав вашей семьи и предпочтения в архитектуре