Одноэтажный дом в современном стиле площадью 137м²
Вишняково - 137м²
21442332
8 220 000
р.
р.
Получить смету по этому проекту
Проект одноэтажного дома в современном стиле общей площадью 137м² в коттеджном посёлке «Вишняково». Олицетворение комфорта и классики.
Получите смету по данному проекту
Оставьте свой номер и мы отправим Вам смету стоимости строительства
Архитектурно-планировочное решение:
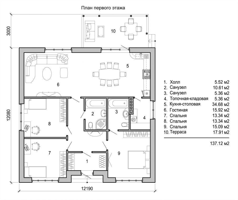
На первом этаже распологаются холл, 2 санузла, топочная-кладовая, кухня-столовая, гостиная, 3 спальни, терасса.
Конструктивные решения:
Конструктивная система здания: бескаркасная
Несущие стены - газобетонные блоки 400мм
Ограждающие конструкции здания жилого дома запроектированы в соответствии с требованиями СП 50.13330.2012 Тепловая защита зданий
Фундамент - монолитная плита
Наружные стены - газобетонный блок Bonolit D 500 - 400мм + декоративная фасадная штукатурка
Внутренние стены - железобетонные монолитные пилоны с заполнением газоблоком Bonolit 200мм
Перегородки - Газобетонный блок Bonolit - 100/150мм
Вентканалы - Газобетонный блок Bonolit - 100мм
Перекрытие - монолитное 200мм
Крыша - деревянная стропильная система с фальцевым покрытием
Водосток - организованный, наружный
Окна - из ПВХ/аллюминиевые профили с двойными стеклопакетами
Двери - межкомнатные деревянные, входная - металлическая, H=2300мм, H 1 этажа = 2600мм, H 2 этажа - 2400мм
Полы - кварцвинил в комнатах, в санузлах и тех. помещениях - керамическая плитка
Вы можете внести изменения в данный проект и адаптировать его по своим предпочтениям - изменить планировку, фасад, внутреннюю отделку. Внесение изменений производится при встрече с опытным архитектором, который учтет все ваши пожелания относительно данного проекта и поможет советом.
White Stone Group ставит пожелания клиента на первое место. При индивидуальном проектировании учитываются особенности участка, состав вашей семьи и предпочтения в архитектуре