Двухэтажный дом в стиле Райта площадью 260м²
Купавушка - 260м²
Купавушка - 260м²
11 700 000
р.
р.
Проект двухэтажного дома в стиле Райта общей площадью 260м² в коттеджном посёлке «Купавушка». Данный дом демонстрирует роскошь в современном стиле.


Архитектурно-планировочное решение:
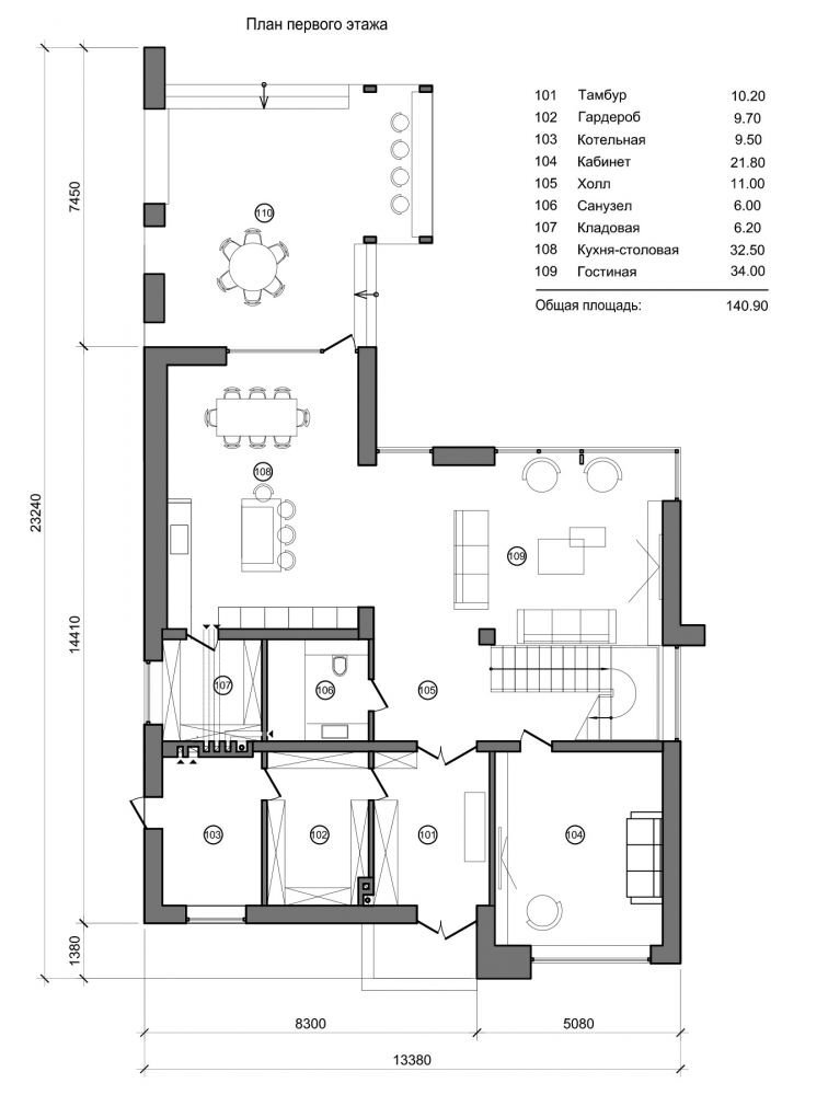
  • На первом этаже распологаются тамбур, гардероб, котельная, кабинет, холл, санузел, кладовая, кухня-столовая, гостиная.
  • На втором этаже распологаются холл, 2 ванны, 3 спальни, гардероб, балкон.
Конструктивные решения:
  • Конструктивная система здания: бескаркасная
  • Несущие стены - газобетонные блоки 400мм
  • Ограждающие конструкции здания жилого дома запроектированы в соответствии с требованиями СП 50.13330.2012 Тепловая защита зданий
  • Фундамент - монолитная плита
  • Наружные стены - газобетонный блок Bonolit D 500 - 400мм + декоративная фасадная штукатурка
  • Внутренние стены - железобетонные монолитные пилоны с заполнением газоблоком Bonolit 200мм
  • Перегородки - Газобетонный блок Bonolit - 100/150мм
  • Вентканалы - Газобетонный блок Bonolit - 100мм
  • Перекрытие - монолитное 200мм
  • Чаша и стены бассейна - железобетонные монолитные
  • Лестницы - монолитные (винтовая и с забежными ступенями для доступа в технический этаж)
  • Крыша - плоская, неэксплуатируемая ТН Кровля Проф КМС
  • Водосток - организованный, наружный
  • Окна - из ПВХ/аллюминиевые профили с двойными стеклопакетами
  • Двери - межкомнатные деревянные, входная - металлическая, H=2300мм, H 1 этажа = 2600мм, H 2 этажа - 2400мм
  • Полы - кварцвинил в комнатах, в санузлах и тех. помещениях - керамическая плитка
Вы можете внести изменения в данный проект и адаптировать его по своим предпочтениям - изменить планировку, фасад, внутреннюю отделку. Внесение изменений производится при встрече с опытным архитектором, который учтет все ваши пожелания относительно данного проекта и поможет советом.
План 1 этажа
План 2 этажа
Разработаем проект индивидуально под вас
White Stone Group ставит пожелания клиента на первое место. При индивидуальном проектировании учитываются особенности участка, состав вашей семьи и предпочтения в архитектуре